Mastodon

renephoenix.de

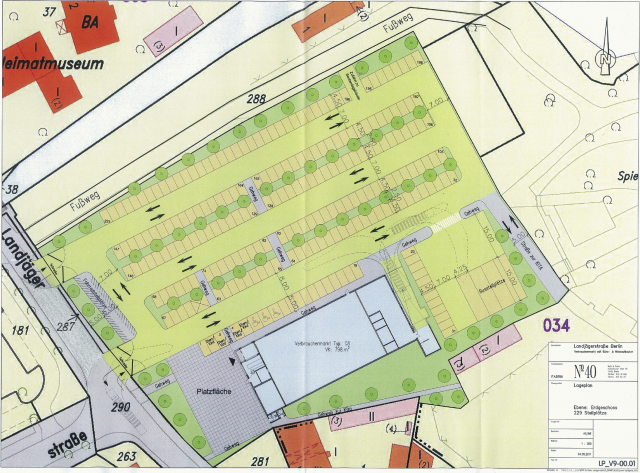
Künftige Parkplatzwüste am Amtswäldchen

Künftige Parkplatzwüste am Amtswäldchen

Bisherige Kommentare (0)

Es wurde noch kein Kommentar geschrieben!

Kommentar verfassen

Freiwillige Angabe
Freiwillige Angabe
Der Text kann mit Textile formatiert werden, z.B. *fett* _kursiv_ "link":url. Wie das geht?
Wieviel ist 40 plus 2?

Bisherige Trackbacks (0)

Es wurde noch kein Trackback empfangen!