Regatta-Quartier - Aber bitte mehr Ufer!
Der Bezirksverordnetenversammlung liegt der Bebauungsplan 9-34 zum sogenannten Regatta-Quartier, ein Gebiet zwischen Dahme und Regattastraße, zur Beschlussfassung vor. Auf dem Areal des ehemaligen Chemiewerks soll Wohnbebauung ermöglicht werden.
Verfahren
Wenn es nach den Willen von vor allem SPD und der Linken geht, so soll dieser Bebauungsplan geradezu durchgewunken werden. Zwischen 23.04. und 07.05. sind gerade einmal zwei Wochen Zeit, sich mit einem 186-seitigen Dokument zu befassen. Für ein Feierabendparlament ist das zugegebenermaßen ein Unding.
Ein schönes Zitat der Stadtplanungsleiterin unserer Bezirks bei einem Biwak-Seminar:
Häuser werden für 80 Jahre gebaut. Da kommt es auf einen Monat nicht an.
Genau so sehe ich das auch!
Hinzu kommt in diesem Fall, dass zeitgleich mit dem Bebauungsplan eine Planreifeerklärung des Bezirksamtes erfolgt ist, mit der letztendlich schon im Vorfeld Baurecht geschaffen werden kann. Über dieses Verfahren möchte ich in einem eigenen Artikel eingehen.
Gegenstand der Planung
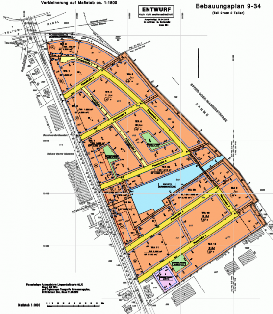
Konkret geht es um ein Areal zwischen Dahme und Regattastraße unmittelbar an der Einmündung des Teltow-Kanals:
Das Areal wurde gut 100 Jahre als Chemiefabrik genutzt. Die Produktion ist 1992 eingestellt worden. Die Gebäude sind (mit Ausnahme vom Pförtnerhäuschen) abgerissen. Der Boden ist überwiegend versiegelt, zudem fand eine Bodensanierung bereits statt. Etwas Spontanvegetation hat sich bereits entwickelt. In Richtung Naturschutz gibt es keine geschützten Arten im Areal. Das Gelände ist derzeit nicht öffentlich begehbar.
Planungsziele
Das Planungsziel ist Wohnbebauung – mit an die 600 Wohneinheiten (1546 Personen). Dazu sind zahlreiche Gebäude geplant. Der Bebauungsplan teilt das Gebiet in 12 Wohngebiete. Die Schnitte der Zuordnung wirken sehr wahlfrei und wenig nachvollziehbar. Der Grund, warum dies so geschnitten ist, erschloss sich mir teilweise erst nach Studium der umfangreichen Begründung.
In der Mitte des Areals ist eine Wasserfläche geplant. Entgegen der ursprünglichen Idee allerdings ohne Öffnung zur Dahme, somit ist es ein geschlossenes Wasserbecken.
Entlang der Regattastraße werden die Gebäude zwingend viergeschossig („Lärmschutzriegel”). Im übrigen sind die Gebäude maximal drei- bis viergeschossig. Die beiden Torgebäude am Becken maximal fünfgeschossig.
Am Rand des Areals ist eine Kita vorgesehen. Zudem wird es drei öffentliche Spielplätze im Plangebiet geben.
Zur inneren Erschließung sind sieben Planstraßen sowie drei Privatstraßen vorgesehen.
Das Ufer ist weitestgehend, aber nicht komplett, für die Öffentlichkeit freigegeben. Es soll ein drei Meter breiter Weg sowie Baumreihen gepflanzt werden. Der festgesetzte Mindestabstand zwischen Ufer und Bebauung beträgt ca. 7 Meter (laut Aussage des Investors sollen es 8 Meter werden)
Verkehrsgutachten
Das Verkehrsgutachten geht davon aus, dass 1546 Personen zu 1475 Kfz-Bewegungen auf der Regattastraße führen (664 nach Köpenick, 811 nach Grünau). Die Regattastraße selber trägt derzeit 8.900 Kfz je Tag. Die umliegenden Straßen seien zur Aufnahme des zusätzlichen Verkehrs geeignet. Bedarf an der Erhöhung des Taktes der Staßenbahnlinie 68 wird nicht gesehen.
Einwendungen
Für das Planverfahren gab es eine frühzeitige und eine reguläre Beteiligung der Öffentlichkeit. Bei der frühzeitigen gab es drei Einwendungen, in der regulären sechs. Das ist verhältnismäßig wenig. Allerdings hat sich der Ortsverein Grünau im Vorfeld koordiniert.
Ich versuche nachfolgend die Anregungen und Wünsche aus der öffentlichen Beteiligung wiederzugeben. Reine Verständnisfragen werde ich nicht berücksichtigen.
Umwidmung der Fläche
Allgemein stößt die Umwidmung aus Zustimmung. Das ist zugegebenermaßen auch nicht verwunderlich: niemand hat gerne ein Chemiewerk (egal, ob brach oder noch in Betrieb) in seinem direkten Wohnumfeld.
Bürger: „Die sinnvollere Nutzung der Flächen als bisher wird begrüßt.”
Ortsverein Grünau: „Wir begrüßen das Vorhaben, das Areal nach vielen Jahren des Stillstands zu bebauen sowie dass hier Wohnungsneubau vorgesehen ist [..]”
Sichtbeziehung und Bebauung zum Wasser
Ortsverein Grünau: Zum Erhalt der Sichtbeziehungen sollten die vier vorgehsehenen Vollgeschosse am Dahme-Ufer nicht voll ausgeschöpft werden.
Bürger: Freiräume B/B1 (also die Wege zum Wasser) sollten auch gartengestalterich entwickelt werden und wünscht sich viele Sichtachsen
Amt: Es verweist, dass nur eine maximale Anzahl der Vollgeschosse festgesetzt werden, folglich der Bauherr diese nicht voll ausschöpfen muss. Es geht jedoch davon aus, dass der Bauherr rein aus finanziellen Gründen den Plan ausreizen wird. Lediglich in der Verlängerung der Planstraßen sind Blickachsen freigehalten. Die festgesetzte Breite wird betont.
Ich: Ich habe den Eindruck, dass das Amt hier den Ortsverein nicht für ernst nimmt. Gerade wenn es die Einsicht des Investors schon erkennt, wäre eine vernünftige Abwägung notwendig. Zudem wurde nicht auf die Festsetzung der gärtnerischen Anlage eingegangen.
Zu dichte Bebauung
Bürger: Hat die Sorge, dass zu dicht bebaut wird („Bebauungsanteil”).
Amt: Begründet nur mit einer GFZ von 1,5 und der Historie, dass es früher noch dichtere Pläne gegeben hat.
Ich: Allein durch die Formulierung „Bebauungsanteil” wird deutlich, dass der Bürger hier Bezug zur Grundflächenzahl und nicht zur Geschossflächenzahl nimmt. Daher geht die Stellungnahme an der Sorge des Bürger vorbei. Ich teile sehr wohl diese Sorge.
Orientierung an vorhandene Bebauung
Bürger: Vermisst die Orientierung auf die vorhandene Bebauung an der Regattastraße, insb. Bundeswehr. So bspw. auch Grünraum.
Amt: Allgemeine Begründung des Verfahrens und die Ausrichtung an der Dahme. Den Bezug zum Grünraum an der Bundeswehr konnte nicht gefolgt werden.
Ich: Ein Bebauungsplanverfahren ist ja gerade dafür da, sich explizit nicht an der Nachbarschaft zu orientieren. Und da gerade bei der Bundeswehr ein Klotz von Haus steht, würde ich davon lieber Abstand nehmen.
Gaststätte / Ausflugsgastronomie
Bürger und Ortsverein Grünau: Gaststätte an der Mündung des Teltowkanals
Amt: Keine planerische Notwendigkeit, es explizit festzusetzen. Im allgemeinen Wohngebieten aber dennoch zulässig.
Ich: Das Amt geht hier auf die Anregung nicht wirklich ein. So sehr ich den Wunsch nach einer Ausflugsgastronomie nachvollziehen kann, würde ich dennoch von einer expliziten Festsetzung Abstand nehmen. Wir haben im Bezirk das Problem, dass viele ehemalige gastronomische Einrichtungen ungenutzt verfallen. Nicht wenige liegen attraktiv am Wasser. In Grünau gibt es das Reviera Gesellschaftshaus. Das im Hinterkopf halte ich es schwierig, eine weitere Schankwirtschaft aufzumachen bzw. hier zu erzwingen, wenngleich der Bedarf allein durch das Wohngebiet gegeben ist.
Pförtnerhaus als Doku-Zentrum
Ortsverein Grünau: Nutzung des ehemaligen Pförtnerhäuschens als Ausstellung, die Bezug zur Vergangenheit des Areals und der Grünauer Geschichte nimmt.
Amt: Kein Regelungsinhalt des Bebauungsplanes
Ich: Was im Makarenko-Quartier vorbildlich gelungen ist, verweigert hier das Amt gänzlich. Es steht ja noch nicht einmal in der Abwägung, dass man den Investor dazu befragt hatte. Im Stadtentwicklungsausschuss zeigte sich der Investor dieser Anregung positiv aufgeschlossen, zumal er selbst noch keine langfristige Idee für das Gebäude hat.
Uferbereich mind. 15 Meter
Bürger: Der Uferweg ist mindestens 15m von jeglicher Bebauung freizuhalten, u.a. auch weil die Dahme Einzugsgebiet von Otter und Biber ist
Amt: Für Biber und Otter ist das Areal bisher uninteressant gewesen, nicht zuletzt durch die Spundwand und fehlenden Ausstiegsmöglichkeiten aus dem Wasser. Vor Ort wurden auch keine Tiere festgestellt. Zudem wird auf den 6 bis 7-Meter breiten Grünstreifen verwiesen. Mehr sei wohl nicht möglich, weil das sehr flächenintensiv sei und unter Beachtung der hohen Sanierungskosten einer Vermarktung der Grundstücke dem entgegenstehen würde.
Ich: Das Nichtvorhandensein der Tiere ist nachvollziehbar erläutert worden. Allerdings wurde auf den Wunsch der Breite nicht eingegangen.
Uferbereich als Erholungsfläche
Bürger: Wünscht, dass der Uferbereich als Erholungs- und Sportstätte ausgewiesen wird.
Amt: Begründet den engen Weg und die drei Spielplätze, trägt aber sonst die Sorge, dass Sportflächen der Wohnungsbaustrategie entgegenstehen würden – und deshalb nicht weiter verfolgt werden kann.
Ich: Die Logik ist falsch. Denn die Wohnungen dieser Sportfläche könnten als zusätzliche Etagen auf andere Gebäude gesetzt werden. Also mehr Stockwerke, niedrigere Grundflächenzahl, gleiche Geschossflächenzahl. (Wenn es not tut, auch mit Änderung des Flächennutzungsplanes)
Zahlreiche Wünsche zum Arten- und Naturschutz
Bürger: Zahlreiche Vorschläge:
- Nistkästen (für Mauersegler, …)
- Einrichtung abgetrennter eingezäunter Areale mit Wildwuchs
- Ausstiegsmöglichkeien für Enten / Abschrägung des Ufers
- Anpflanzung im Schilfbereich
- Anpflanzung von Baumgruppen
- Sitzgelegenheiten / Abfalleimer
- Gestaltung der Parkanlage mit Blumen und Beerensträuchern
- Schlagschutz für Fenster
- Höchstgeschwindigkeit in Hafen und Kanälen
- Waschverbot für Boote
- Wasserwanderrastplätze
- Verbot von Steganlagen in der Dahme
- „Insektenhotels”
- Dachbegrünung
Amt: Kein Regelungsinhalt des Bebauungsplanes, aber ggf. relevant in der Umweltprüfung
Ich: Manche Aspekte können nicht in Bebauungsplänen festgesetzt werden bzw. ergeben sich auch aus anderen Gesetzen. Ergänzend kommt hier hinzu, dass das Vorhaben praktisch keinen Bedarf an Ausgleichsmaßnahmen nach sich zieht, da der Versiegelungsgrad der Fläche extrem hoch war und durch die Bebauung sich reduzieren wird. Dennoch werden hier alle Punkte abgewiesen. Im Verfahren zum Makarenko-Quartier wurde bspw. ein abgetrenntes, eingezäuntes Areal festgesetzt. Bei den Fachmärkten an der Schnellerstraße wurde 50% Dachbegrünung festgesetzt.
Soziale Mischung / Mietwohnungen
Ortsverein Grünau: plädieren für hohen Anteil an familiengerechten Wohnungen insbesondere im preisgünstigen Bereich
Amt: Angebotsplanung ermöglicht unterschiedliche Wohnformen, die jedoch nicht im B-Plan geregelt werden können.
Ich: Aber im Durchführungsvertrag. Und dazu steht nichts. Null. Niente.
Erweiterung Grünauer Schule
Ortsverein Grünau: Steigende Schülerzahlen, damit Erweiterung der Grünauer Schule
Amt: im städtebaulichen Vertrag geregelt zu Folgekostenbeiträgen
Ich: Ok. In Berlin ist es zur Zeit üblich, dass Gemeininfrastruktur (konkret: Kindergarten- und Grundschulplätze) der Vorhabensträger aufgebürdet bekommt.
Architektonische Wünsche
Ortsverein Grünau: Bittet um architektonische Sorgfalt, so sollen die beiden höheren Gebäude nicht wie mittelalterliche Wehrtürme wirken.
Amt: Plan trifft im Sinne einer planerischen Zurückhaltung keine Festsetzung zu Gebäuden
Ich: Architektur gehört nicht in einen Bebauungsplan.
Vermeidung von Lärm
Ortsverein Grünau: Tempo 30 sowie LKW-Verbot
Amt: Tempo 30 nachts bereits beantragt, von VLB abgelehnt. Das LKW-Verbot lehnt das Bezirksamt ab, weil es LKWs gibt, die zwingend auch nachts da entlang fahren müssen.
Dämmung / Photovoltaik / Energieversorgung
Ortsverein Grünau: Wunsch nach Dämmung. Photovoltaik und thermische Solarenergie sollte genutzt werden. Versorgung mit Strom und Wärme durch Blockheizkraftwerk, ggf. Geothermie und Wärmepumpen. Wärmpumpen, Pumpen des Wasserbeckens sowie Beleuchtung aus regenative Energie
Amt: Kein Gegenstand von Festsetzungen in Bebauungsplan
Ich: Wenn auch nicht alle Punkte des Wunschkataloges möglich sind, so kann sehr wohl ein Blockheizkraftwerk oder ähnliches Laut §9 (1) Nr. 12 BauGB festgesetzt werden. Tut in dem Falle nicht einmal weh, da der Investor es ohnehin beabsichtigt.
Obstbäume
Ortsverein Grünau: Anpflanzung von Obstbäumen
Amt: Wird in der Pflanzenliste berücksichtigt.
Ich: In der Pflanzenliste sind verschiedene Apfel-, Birnen-, Pflaumen- und Kirschbäume enthalten. Es ist möglich, aber nicht sichergestellt, dass Obstbäume kommen werden.
Werft macht Krach
MittSchiffsWerft GmbH: Die Werft verweist sehr ausführlich auf ihre lauten Tätigkeiten und möchte keinen Nachbarschaftsklagen ausgesetzt sein, die zu erwarten sind. Konkret schlägt sie vor, dass zwei textliche Festsetzungen (Lärmschutz in Richtung Regattastraße) auch zum Teltowkanal hin gelten sollen.
Amt: Es wird zunächst auf die Korrektheit des Schallschutzgutachtens verwiesen. Zudem seien bestimmte Tätigkeiten – wenn sie so ausgeführt werden – rechtswidrig.
Ich: Egal, ob rechtswidrig oder nicht. Die Anregung war, dass eine Festsetzung erweitert wird. Für mich entscheidend ist, ob sich durch die Festsetzung der Schallschutz sogar verbessert. Die Immissionsschutzgesetz regelt ja nur Obergrenzen. Leiser geht immer.
Nahwärmelieferung
Firma Techem: Will Festsetzungen nach §9 Abs. 1 Nr. 12 BauGB für Nahversorgung sowie mögliche Leitungstrassen.
Amt: Verweist auf §12 BerlStrG
Ich: ok.
Wünsche außerhalb des Planes
- Förderung des Wassersportes / Wasserwanderrastplätze (Teilweise gehen die Positionen hier auseinander, in wie weit Stege in die Dahme errichten werden sollen. Ohne Stege kaum Wassersport möglich.)
- Bänke und Abfalleimer am Uferweg
- Tempo 30 in der Regattastraße / Allgemein: Lärmschutz.
Behörden
Aus der Beteiligung der Behörden und Träger öffentlicher Belange möchte ich nicht so viel wiedergeben. Daher nur ein Aspekt der Verkehrslenkung Berlin (VLB). In der Begründung steht als Vorschlag die Reduzierung der Geschwindigkeit in der Nachtzeit. Diese Anordnung muss die VLB machen, weil es eine übergeordnete Straße ist. Nun moniert die VLB, dass Alternativen gar nicht berücksichtigt worden. Hier ging es konkret um schallgedämpfte Lüftungen, die aber festgesetzt sind. Ein typischer Vorgang der VLB, möglichst wenig Arbeit zu haben…
Meine Abwägungen
Ich begrüße zunächst die Planabsichten, ein allgemeines Wohngebiet schaffen zu wollen.
Der hier vorliegende Bebauungsplan ist offiziell eine Angebotsplanung, wenngleich es den Eindruck erweckt, als sei es ein vorhabensbezogener Bebauungsplan.
Die Idee eines Wasserbeckens (egal ob mit oder ohne Dahme) ist charmant. Es ist jedoch als eine verkaufsfördernde Maßnahme anzusehen. Das ist nicht verwerflich, im Gegenteil. Der Investor kann mehr Filetstücke aus dem Areal entwickeln. Nur darf diese Wasseranlage nicht mit einer karitativen oder wohltätigen Aufgabe verwechselt werden. Aus Sicht des Bezirks betrachte ich es als ein Nice-to-Have. Die Herausforderung wird allerdings werden, dass das Wasserbecken keinerlei Kontakt zum kontaminierten Grundwasser herstellen darf.
Auf dem Areal ist keinerlei Schaffung von preiswerteren Wohnraum vorgesehen. Das muss der Investor auch nicht zwingend tun. Nur als Bezirksverordneter muss ich auch nicht zwingend diesem Bebauungsplan zustimmen. Mit Blick auf die Interessen des Bezirks sehe ich nur einen wachsenden Bedarf an eben solchen Wohnungen.
Auch vermisse ich das erlebbare Ufer, wie es im Landesentwicklungsprogramm 2007, §6 gefordert ist:
Die öffentliche Zugänglichkeit und Erlebbarkeit von Gewässerrändern und anderen Gebieten, die für die Erholungsnutzung besonders geeignet sind, sollen erhalten oder hergestellt werden. Siedlungsbezogene Freiräume sollen für die Erholung gesichert und entwickelt werden.
Es geht nicht nur um Zugang. Es geht auch um Erlebbarkeit. Es geht um siedlungsbezogene Freiräume. Es haben mehrere Bürger ein erlebbares Ufer gewünscht, doch ein drei Meter breiter Weg ist nicht ausreichend, um das Gewässer zu erleben. Da kann niemand seine Decke ausbreiten. Oder mal die Volleyballschläger herausholen. Und wenn in der Abwägung dieser Forderungen nur finanzielle Interessen des Investors berücksichtigt werden, so ist das nicht ausreichend und zufriedenstellend.
Ich halte es für möglich und sinnvoll, die Gebäude am Ufer (mit Ausnahme der Türme) weiter zurückzusetzen. Das muss nicht unbedingt zu Lasten der Wohnungsanzahl bzw. der erzielbaren Gesamtwohnfläche gehen. Ich habe kein Problem damit, wenn einzelne Häuser höher ausfallen. Auch nicht die beiden Türme.
Unschön und unverständlich finde ich dass nicht durchgehende Ufer. Egal, ob das Wasser zur Dahme verbunden ist oder das derzeitige Becken: eine Querung am Ufer der Dahme wäre notwendig. Wenn man so möchte ist das Hafenbecken ein künstlich geschaffenes Hindernis. Zudem ist am nördlichen Torhaus nicht festgesetzt, dass der Weg für die Allgemeinheit passierbar ist (auch wenn der Investor dies im Ausschuss zugesichert hat).
Fazit
Ich habe diesen Bebauungsplan so in der Form am 07.05.2015 abgelehnt, es hat sich in der BVV jedoch eine Mehrheit aus SPD, CDU, Linke und Grüne gefunden, die ihm die Zustimmung erteilt haben und folglich angenommen wurde. Als der Bebauungsplan angenommen wurde, gab es Applaus aus dem Publikum: der Vorhabensträger hat geklatscht.
Bisherige Kommentare (0)
Es wurde noch kein Kommentar geschrieben!
Kommentar verfassen
Bisherige Trackbacks (0)
Es wurde noch kein Trackback empfangen!


